Property
Account |
| Property ID: | 13964 | Abbreviated Legal Description: | TR IN GOVT LOT 6 DAF-BEAP ON E LI OF GOVT LOT 6 372.76 FT N.OF SE COR OF GOVT LOT 6 AS DEPICTED ON ROS AF 941230114-TH AT R/A TO SD E LI N 89 DEG 48'48" W 10 FT TO POB-TH S 00 DEG 11'12" W PAR WI SD E LI 61.25 FT-TH S 12 DEG 26'15" W 118.32 FT-TH N 73 DEG |
| Parcel # / Geo ID: | 3701052540310000 | Agent Code: | |
| Type: | Real | | |
| Tax Area: | 2035 - 502 R L F11 C2 EMS11 | Land Use Code | 11 |
| Open Space: | N | DFL | N |
| Historic Property: | N | Remodel Property: | N |
| Multi-Family Redevelopment: | N | | |
| Township: | T37N | Section: | 05 |
| Range: | R01E | Legal Acres: | 1.1500 |
Location |
| Address: | 2101 WEST SHORE DR LUMMI ISLAND, WA | Mapsco: | |
| Neighborhood: | 4020011000 LI SFR-AC | Map ID: | 4MLS_2 |
| Neighborhood CD: | 4020011000 |
Owner |
| Name: | JOE SMITH | Owner ID: | 561473 |
| Mailing Address: | 2477 TUTTLE LN LUMMI ISLAND, WA 98262-8646 | % Ownership: | 100.0000000000% |
| | | Exemptions: | |
Pay Tax Due
Select the appropriate checkbox next to the year to be paid. Multiple years may be selected.
*Convenience Fee not included
Taxes and Assessment Details
Property Tax Information as of
03/08/2026
Click on "Statement Details" to expand or collapse a tax statement.
* Please enter a valid date ** Please enter a valid date *
Statement Details |
| 2026 | 2793 | ST - WASHINGTON STATE | $1001.70 | $1001.68 | $0.00 | $0.00 | $0.00 | $2003.38 |
| 2026 | 2793 | WC - WHATCOM COUNTY | $345.08 | $345.06 | $0.00 | $0.00 | $0.00 | $690.14 |
| 2026 | 2793 | RD - COUNTY ROAD | $389.30 | $389.28 | $0.00 | $0.00 | $0.00 | $778.58 |
| 2026 | 2793 | FC - FLOOD CONTROL ZONE | $46.37 | $46.36 | $0.00 | $0.00 | $0.00 | $92.73 |
| 2026 | 2793 | CEM002 - CEMETERY #2 | $4.80 | $4.80 | $0.00 | $0.00 | $0.00 | $9.60 |
| 2026 | 2793 | CF - CONSERVATION FUTURES | $10.19 | $10.19 | $0.00 | $0.00 | $0.00 | $20.38 |
| 2026 | 2793 | FD011 - FIRE #11 | $420.78 | $420.78 | $0.00 | $0.00 | $0.00 | $841.56 |
| 2026 | 2793 | RL - RURAL LIBRARY | $188.16 | $188.16 | $0.00 | $0.00 | $0.00 | $376.32 |
| 2026 | 2793 | PT - PORT OF BELLINGHAM | $55.51 | $55.50 | $0.00 | $0.00 | $0.00 | $111.01 |
| 2026 | 2793 | SD502 - FERNDALE SCHOOL #502 | $1074.68 | $1074.68 | $0.00 | $0.00 | $0.00 | $2149.36 |
| 2026 | 2793 | FD011EMS - FIRE #11 EMS | $79.09 | $79.09 | $0.00 | $0.00 | $0.00 | $158.18 |
| 2026 | 2793 | WCEMS - WHATCOM COUNTY EMS | $115.59 | $115.58 | $0.00 | $0.00 | $0.00 | $231.17 |
| 2026 | 2793 | OSS - ON-SITE SEWAGE FEE | $9.50 | $9.50 | $0.00 | $0.00 | $0.00 | $19.00 |
| 2026 | 2793 | WCD - WHATCOM CONSERVATION DISTRICT | $2.50 | $2.50 | $0.00 | $0.00 | $0.00 | $5.00 |
| 2026 | 2793 | TOTAL: | $3743.25 | $3743.16 | $0.00 | $0.00 | $0.00 | $7486.41 |
|
| 2026 | 2793 | $3743.25 | $3743.16 | $0.00 | $0.00 | $0.00 | $7486.41 |
Statement Details |
| 2025 | 2872 | ST - WASHINGTON STATE | $1043.79 | $965.30 | $0.00 | $0.00 | $2009.09 | $0.00 |
| 2025 | 2872 | WC - WHATCOM COUNTY | $359.33 | $332.28 | $0.00 | $0.00 | $691.61 | $0.00 |
| 2025 | 2872 | RD - COUNTY ROAD | $394.98 | $365.30 | $0.00 | $0.00 | $760.28 | $0.00 |
| 2025 | 2872 | FC - FLOOD CONTROL ZONE | $47.70 | $44.11 | $0.00 | $0.00 | $91.81 | $0.00 |
| 2025 | 2872 | CEM002 - CEMETERY #2 | $5.22 | $4.82 | $0.00 | $0.00 | $10.04 | $0.00 |
| 2025 | 2872 | CF - CONSERVATION FUTURES | $10.38 | $9.60 | $0.00 | $0.00 | $19.98 | $0.00 |
| 2025 | 2872 | FD011 - FIRE #11 | $450.26 | $416.41 | $0.00 | $0.00 | $866.67 | $0.00 |
| 2025 | 2872 | RL - RURAL LIBRARY | $116.41 | $107.66 | $0.00 | $0.00 | $224.07 | $0.00 |
| 2025 | 2872 | PT - PORT OF BELLINGHAM | $57.63 | $53.28 | $0.00 | $0.00 | $110.91 | $0.00 |
| 2025 | 2872 | SD502 - FERNDALE SCHOOL #502 | $997.01 | $922.07 | $0.00 | $0.00 | $1919.08 | $0.00 |
| 2025 | 2872 | FD011EMS - FIRE #11 EMS | $84.78 | $78.40 | $0.00 | $0.00 | $163.18 | $0.00 |
| 2025 | 2872 | WCEMS - WHATCOM COUNTY EMS | $99.44 | $91.97 | $0.00 | $0.00 | $191.41 | $0.00 |
| 2025 | 2872 | OSS - ON-SITE SEWAGE FEE | $9.50 | $9.50 | $0.00 | $0.00 | $19.00 | $0.00 |
| 2025 | 2872 | WCD - WHATCOM CONSERVATION DISTRICT | $2.50 | $2.50 | $0.00 | $0.00 | $5.00 | $0.00 |
| 2025 | 2872 | TOTAL: | $3678.93 | $3403.20 | $0.00 | $0.00 | $7082.13 | $0.00 |
|
| 2025 | 2872 | $3678.93 | $3403.20 | $0.00 | $0.00 | $7082.13 | $0.00 |
Statement Details |
| 2024 | 2948 | ST - WASHINGTON STATE | $1825.95 | $0.00 | $0.00 | $0.00 | $1825.95 | $0.00 |
| 2024 | 2948 | WC - WHATCOM COUNTY | $613.09 | $0.00 | $0.00 | $0.00 | $613.09 | $0.00 |
| 2024 | 2948 | RD - COUNTY ROAD | $635.67 | $0.00 | $0.00 | $0.00 | $635.67 | $0.00 |
| 2024 | 2948 | FC - FLOOD CONTROL ZONE | $90.45 | $0.00 | $0.00 | $0.00 | $90.45 | $0.00 |
| 2024 | 2948 | CEM002 - CEMETERY #2 | $9.81 | $0.00 | $0.00 | $0.00 | $9.81 | $0.00 |
| 2024 | 2948 | CF - CONSERVATION FUTURES | $19.50 | $0.00 | $0.00 | $0.00 | $19.50 | $0.00 |
| 2024 | 2948 | FD011 - FIRE #11 | $840.62 | $0.00 | $0.00 | $0.00 | $840.62 | $0.00 |
| 2024 | 2948 | RL - RURAL LIBRARY | $218.18 | $0.00 | $0.00 | $0.00 | $218.18 | $0.00 |
| 2024 | 2948 | PT - PORT OF BELLINGHAM | $110.68 | $0.00 | $0.00 | $0.00 | $110.68 | $0.00 |
| 2024 | 2948 | SD502 - FERNDALE SCHOOL #502 | $1681.04 | $0.00 | $0.00 | $0.00 | $1681.04 | $0.00 |
| 2024 | 2948 | FD011EMS - FIRE #11 EMS | $158.18 | $0.00 | $0.00 | $0.00 | $158.18 | $0.00 |
| 2024 | 2948 | WCEMS - WHATCOM COUNTY EMS | $187.37 | $0.00 | $0.00 | $0.00 | $187.37 | $0.00 |
| 2024 | 2948 | OSS - ON-SITE SEWAGE FEE | $19.00 | $0.00 | $0.00 | $0.00 | $19.00 | $0.00 |
| 2024 | 2948 | WCD - WHATCOM CONSERVATION DISTRICT | $5.00 | $0.00 | $0.00 | $0.00 | $5.00 | $0.00 |
| 2024 | 2948 | TOTAL: | $6414.54 | $0.00 | $0.00 | $0.00 | $6414.54 | $0.00 |
|
| 2024 | 2948 | $6414.54 | $0.00 | $0.00 | $0.00 | $6414.54 | $0.00 |
Statement Details |
| 2023 | 3025 | ST - WASHINGTON STATE | $1383.75 | $0.00 | $0.00 | $0.00 | $1383.75 | $0.00 |
| 2023 | 3025 | WC - WHATCOM COUNTY | $468.95 | $0.00 | $0.00 | $0.00 | $468.95 | $0.00 |
| 2023 | 3025 | RD - COUNTY ROAD | $506.91 | $0.00 | $0.00 | $0.00 | $506.91 | $0.00 |
| 2023 | 3025 | FC - FLOOD CONTROL ZONE | $69.70 | $0.00 | $0.00 | $0.00 | $69.70 | $0.00 |
| 2023 | 3025 | CEM002 - CEMETERY #2 | $8.48 | $0.00 | $0.00 | $0.00 | $8.48 | $0.00 |
| 2023 | 3025 | CF - CONSERVATION FUTURES | $14.26 | $0.00 | $0.00 | $0.00 | $14.26 | $0.00 |
| 2023 | 3025 | FD011 - FIRE #11 | $716.08 | $0.00 | $0.00 | $0.00 | $716.08 | $0.00 |
| 2023 | 3025 | RL - RURAL LIBRARY | $170.48 | $0.00 | $0.00 | $0.00 | $170.48 | $0.00 |
| 2023 | 3025 | PT - PORT OF BELLINGHAM | $85.94 | $0.00 | $0.00 | $0.00 | $85.94 | $0.00 |
| 2023 | 3025 | SD502 - FERNDALE SCHOOL #502 | $1359.54 | $0.00 | $0.00 | $0.00 | $1359.54 | $0.00 |
| 2023 | 3025 | FD011EMS - FIRE #11 EMS | $134.11 | $0.00 | $0.00 | $0.00 | $134.11 | $0.00 |
| 2023 | 3025 | WCEMS - WHATCOM COUNTY EMS | $144.28 | $0.00 | $0.00 | $0.00 | $144.28 | $0.00 |
| 2023 | 3025 | OSS - ON-SITE SEWAGE FEE | $19.00 | $0.00 | $0.00 | $0.00 | $19.00 | $0.00 |
| 2023 | 3025 | WCD - WHATCOM CONSERVATION DISTRICT | $5.00 | $0.00 | $0.00 | $0.00 | $5.00 | $0.00 |
| 2023 | 3025 | TOTAL: | $5086.48 | $0.00 | $0.00 | $0.00 | $5086.48 | $0.00 |
|
| 2023 | 3025 | $5086.48 | $0.00 | $0.00 | $0.00 | $5086.48 | $0.00 |
Values
| (+) Improvement Homesite Value: | + | $0 | |
| (+) Improvement Non-Homesite Value: | + | $479,278 | |
| (+) Land Homesite Value: | + | $0 | |
| (+) Land Non-Homesite Value: | + | $413,272 | |
| (+) Curr Use (HS): | + | $0 | $0 |
| (+) Curr Use (NHS): | + | $0 | $0 |
| | | -------------------------- | |
| (=) Market Value: | = | $892,550 | |
| (–) Productivity Loss: | – | $0 | |
| | | -------------------------- | |
| (=) Subtotal: | = | $892,550 | |
| (+) Senior Appraised Value: | + | $0 | |
| (+) Non-Senior Appraised Value: | + | $892,550 | |
| | | -------------------------- | |
| (=) Total Appraised Value: | = | $892,550 | |
| (–) Senior Exemption Loss: | – | $0 | |
| (–) Exemption Loss: | – | $0 | |
| | | -------------------------- | |
| (=) Taxable Value: | = | $892,550 | |
Map List
Taxing Jurisdiction
| Owner: | JOE SMITH | | |
| % Ownership: | 100.0000000000% | | |
| Total Value: | $892,550 | | |
| Tax Area: | 2035 - 502 R L F11 C2 EMS11 |
| CEM002 | CEMETERY #2 | 0.0107563590 | $892,550 | $892,550 | $9.60 | | |
| CFL | CONSERVATION FUTURES | 0.0228313906 | $892,550 | $892,550 | $20.38 | | |
| FCZDL | FLOOD CONTROL ZONE | 0.1038882491 | $892,550 | $892,550 | $92.73 | | |
| FD011EXP | FIRE #11 EXPENSE FUND | 0.9428712782 | $892,550 | $892,550 | $841.56 | | |
| PTBOND | PORT OF BELLINGHAM GO BOND | 0.0000000000 | $892,550 | $892,550 | $0.00 | | |
| PTGEN | PORT OF BELLINGHAM GENERAL FUND | 0.1241748324 | $892,550 | $892,550 | $110.83 | | |
| PTRDA | PORT OF BELLINGHAM RDA | 0.0002012100 | $892,550 | $892,550 | $0.18 | | |
| RDDIV | COUNTY ROAD DIVERSION | 0.0399207380 | $892,550 | $892,550 | $35.63 | | |
| RDGEN | COUNTY ROAD FUND | 0.8323925256 | $892,550 | $892,550 | $742.95 | | |
| RLIBGEN | RURAL LIBRARY | 0.4216287981 | $892,550 | $892,550 | $376.32 | | |
| SD502B | FERNDALE SCHOOL #502 BOND | 0.8185270037 | $892,550 | $892,550 | $730.58 | | |
| SD502CP | FERNDALE #502 CAPITAL PROJECTS | 0.0000000000 | $892,550 | $892,550 | $0.00 | | |
| SD502MO | FERNDALE SCHOOL #502 ENRICHMENT | 1.5895793755 | $892,550 | $892,550 | $1,418.78 | | |
| WA1 | STATE SCHOOL PART 1 | 1.4584629823 | $892,550 | $892,550 | $1,301.75 | | |
| WA2 | STATE SCHOOL PART 2 | 0.7861003722 | $892,550 | $892,550 | $701.63 | | |
| WCCE | COUNTY CURRENT EXPENSE | 0.5668806380 | $892,550 | $892,550 | $505.97 | | |
| WCCI | CHILDRENS INITIATIVE | 0.1644255019 | $892,550 | $892,550 | $146.76 | | |
| WCCT | COUNTY MENTAL HEALTH | 0.0125000000 | $892,550 | $892,550 | $11.16 | | |
| WCDD | COUNTY DEVELOPMENTAL DISABILITY | 0.0125000000 | $892,550 | $892,550 | $11.16 | | |
| WCER | COUNTY ELECTION RESERVE | 0.0056578718 | $892,550 | $892,550 | $5.05 | | |
| WCVR | COUNTY VETERANS RELIEF | 0.0112499999 | $892,550 | $892,550 | $10.04 | | |
| FD011EMS | EMERGENCY MEDICAL SVC FIRE #11 | 0.1772208388 | $892,550 | $892,550 | $158.18 | | |
| WCEMS | WHATCOM COUNTY EMS | 0.2589959107 | $892,550 | $892,550 | $231.17 | | |
| | Total Tax Rate: | 8.3607658758 | | | | | |
| | | | | Taxes w/Current Exemptions: | $7,462.41 | | |
| | | | | Taxes w/o Exemptions: | $7,462.41 | | |
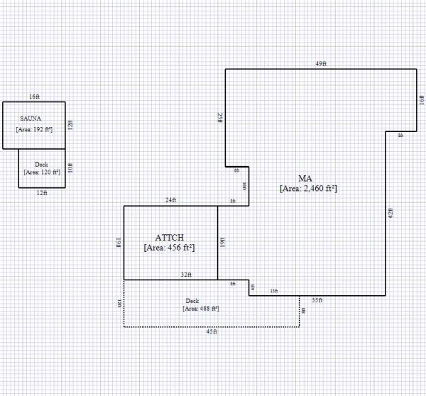
Improvement / Building
| Improvement #1: | 1 STORY | State Code: | 1113 | 2460.0 sqft | Value: | $479,278 |
| Exterior Wall: | SI/ST | Fireplace: | FSTAN-GOOD | | Floor Cov Adj: | Base Allowance | Foundation: | CONPR | | Full Baths: | 1 | Half Baths: | 1 | | Heating/Cooling: | F/A | Number of Bedrooms: | 3 | | Roof Covering: | COMP |   |   |
|
| | Type | Description | Class CD | Sub Class CD | Year Built | Area |
| | ATTCH | Attached Garage | AVG + | * | 1975 | 456.0 |
| | MA | Main Area 1 | AVG + | * | 1975 | 2460.0 |
| | Deck | Deck | AVG + | * | 1975 | 488.0 |
| | Deck | Deck | GOOD | | 2020 | 120.0 |
| | STOR | ADDNS-Storage Bldg | V GD | | 1975 | 192.0 |
Sketch
Property Image
Land
| 1 | 1112 | RES 2 BDRM | 1.0000 | 435.60 | 0.00 | 0.00 | 0.00 | $392,700 | $0 |
| 2 | 9110 | RESIDENTIAL | 0.1500 | 6534.00 | 0.00 | 0.00 | 0.00 | $20,572 | $0 |
Roll Value History
| 2026 | N/A | N/A | N/A | N/A | N/A |
| 2025 | $479,278 | $413,272 | $0 | $892,550 | $892,550 |
| 2024 | $395,153 | $471,595 | $0 | $866,748 | $866,748 |
| 2023 | $390,059 | $460,994 | $0 | $851,053 | $851,053 |
| 2022 | $261,788 | $309,396 | $0 | $571,184 | $571,184 |
| 2021 | $227,642 | $269,040 | $0 | $496,682 | $496,682 |
| 2020 | $207,407 | $228,000 | $0 | $435,407 | $435,407 |
| 2019 | $207,407 | $228,000 | $0 | $435,407 | $435,407 |
| 2018 | $164,170 | $221,245 | $0 | $385,415 | $385,415 |
| 2017 | $164,170 | $221,245 | $0 | $385,415 | $385,415 |
| 2016 | $141,013 | $190,037 | $0 | $331,050 | $331,050 |
| 2015 | $136,138 | $183,467 | $0 | $319,605 | $319,605 |
| 2014 | $132,481 | $178,540 | $0 | $311,021 | $311,021 |
| 2013 | $121,878 | $164,250 | $0 | $286,128 | $286,128 |
| 2012 | $120,269 | $230,580 | $0 | $350,849 | $350,849 |
| 2011 | $129,782 | $247,050 | $0 | $376,832 | $376,832 |
| 2010 | $133,859 | $252,540 | $0 | $386,399 | $386,399 |
| 2009 | $135,897 | $274,500 | $0 | $410,397 | $410,397 |
| 2008 | $135,897 | $274,500 | $0 | $410,395 | $410,395 |
| 2007 | $130,527 | $83,000 | $0 | $213,525 | $213,525 |
Deed and Sales History
| 1 | 05/28/2019 | SWD | STATUTORY WARRANTY DEED | TODD W & JACKIE GRANGER | JOE SMITH | | | $480,000.00 | 230811 | 2019-0503592 |
| 2 | 05/08/2002 | QUIT CLAIM | QUIT CLAIM DEED | W LOCKWOOD-W LOCKWOOD CO | WELBORN T LOCKWOOD & W T LOCKWOOD CO | 0 | | $0.00 | 200269690 | 2020501266 |
| 3 | 04/26/2002 | WARRANTY D | WARRANTY DEED | WELBORN T LOCKWOOD | TODD W & JACKIE GRANGER | 0 | | $225,000.00 | 200269687 | 2020501268 |
Payout Agreement
| No payout information available.. |