Property
Account |
| Property ID: | 14076 | Abbreviated Legal Description: | TR IN GOVT LOT 2 DAF-BEG AT INTERS ELY LI OF CO RD 285-SWLY OF LI OF CO RD 122 SD PT BEING 1389.65 FT E-651.82 FT S OF NW SEC COR-TH ALG SD SWLY LI OF CO RD 122 S 60 DEG 09'00" E 218.96 FT-TH ALG SD CO RD S 38 DEG 01'00" E 153.42 FT-TH S 09 DEG 43'00" W |
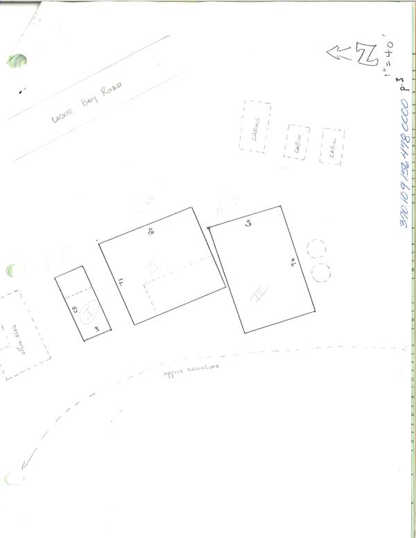
| Parcel # / Geo ID: | 3701091564780000 | Agent Code: | |
| Type: | Real | | |
| Tax Area: | 2035 - 502 R L F11 C2 EMS11 | Land Use Code | 84 |
| Open Space: | N | DFL | N |
| Historic Property: | N | Remodel Property: | N |
| Multi-Family Redevelopment: | N | | |
| Township: | T37N | Section: | 09 |
| Range: | R01E | Legal Acres: | 1.5700 |
Location |
| Address: | 3985 LEGOE BAY RD LUMMI ISLAND, WA | Mapsco: | |
| Neighborhood: | 4320027900 | Map ID: | 4C3_LUMMI |
| Neighborhood CD: | 4320027900 |
Owner |
| Name: | LUMMI INDIAN BUSINESS COUNCIL | Owner ID: | 70773 |
| Mailing Address: | COMPTROLLER 2665 KWINA RD BELLINGHAM, WA 98226-9291 | % Ownership: | 100.0000000000% |
| | | Exemptions: | EX |
Pay Tax Due
There is currently No Amount Due on this property.
Taxes and Assessment Details
Property Tax Information as of
03/09/2026
Click on "Statement Details" to expand or collapse a tax statement.
* Please enter a valid date ** Please enter a valid date *
Statement Details |
| 2026 | 2870 | ST - WASHINGTON STATE | $0.00 | $0.00 | $0.00 | $0.00 | $0.00 | $0.00 |
| 2026 | 2870 | WC - WHATCOM COUNTY | $0.00 | $0.00 | $0.00 | $0.00 | $0.00 | $0.00 |
| 2026 | 2870 | RD - COUNTY ROAD | $0.00 | $0.00 | $0.00 | $0.00 | $0.00 | $0.00 |
| 2026 | 2870 | FC - FLOOD CONTROL ZONE | $0.00 | $0.00 | $0.00 | $0.00 | $0.00 | $0.00 |
| 2026 | 2870 | CEM002 - CEMETERY #2 | $0.00 | $0.00 | $0.00 | $0.00 | $0.00 | $0.00 |
| 2026 | 2870 | CF - CONSERVATION FUTURES | $0.00 | $0.00 | $0.00 | $0.00 | $0.00 | $0.00 |
| 2026 | 2870 | FD011 - FIRE #11 | $0.00 | $0.00 | $0.00 | $0.00 | $0.00 | $0.00 |
| 2026 | 2870 | RL - RURAL LIBRARY | $0.00 | $0.00 | $0.00 | $0.00 | $0.00 | $0.00 |
| 2026 | 2870 | PT - PORT OF BELLINGHAM | $0.00 | $0.00 | $0.00 | $0.00 | $0.00 | $0.00 |
| 2026 | 2870 | SD502 - FERNDALE SCHOOL #502 | $0.00 | $0.00 | $0.00 | $0.00 | $0.00 | $0.00 |
| 2026 | 2870 | FD011EMS - FIRE #11 EMS | $0.00 | $0.00 | $0.00 | $0.00 | $0.00 | $0.00 |
| 2026 | 2870 | WCEMS - WHATCOM COUNTY EMS | $0.00 | $0.00 | $0.00 | $0.00 | $0.00 | $0.00 |
| 2026 | 2870 | TOTAL: | $0.00 | $0.00 | $0.00 | $0.00 | $0.00 | $0.00 |
|
| 2026 | 2870 | $0.00 | $0.00 | $0.00 | $0.00 | $0.00 | $0.00 |
Statement Details |
| 2025 | 2951 | ST - WASHINGTON STATE | $0.00 | $0.00 | $0.00 | $0.00 | $0.00 | $0.00 |
| 2025 | 2951 | WC - WHATCOM COUNTY | $0.00 | $0.00 | $0.00 | $0.00 | $0.00 | $0.00 |
| 2025 | 2951 | RD - COUNTY ROAD | $0.00 | $0.00 | $0.00 | $0.00 | $0.00 | $0.00 |
| 2025 | 2951 | FC - FLOOD CONTROL ZONE | $0.00 | $0.00 | $0.00 | $0.00 | $0.00 | $0.00 |
| 2025 | 2951 | CEM002 - CEMETERY #2 | $0.00 | $0.00 | $0.00 | $0.00 | $0.00 | $0.00 |
| 2025 | 2951 | CF - CONSERVATION FUTURES | $0.00 | $0.00 | $0.00 | $0.00 | $0.00 | $0.00 |
| 2025 | 2951 | FD011 - FIRE #11 | $0.00 | $0.00 | $0.00 | $0.00 | $0.00 | $0.00 |
| 2025 | 2951 | RL - RURAL LIBRARY | $0.00 | $0.00 | $0.00 | $0.00 | $0.00 | $0.00 |
| 2025 | 2951 | PT - PORT OF BELLINGHAM | $0.00 | $0.00 | $0.00 | $0.00 | $0.00 | $0.00 |
| 2025 | 2951 | SD502 - FERNDALE SCHOOL #502 | $0.00 | $0.00 | $0.00 | $0.00 | $0.00 | $0.00 |
| 2025 | 2951 | FD011EMS - FIRE #11 EMS | $0.00 | $0.00 | $0.00 | $0.00 | $0.00 | $0.00 |
| 2025 | 2951 | WCEMS - WHATCOM COUNTY EMS | $0.00 | $0.00 | $0.00 | $0.00 | $0.00 | $0.00 |
| 2025 | 2951 | TOTAL: | $0.00 | $0.00 | $0.00 | $0.00 | $0.00 | $0.00 |
|
| 2025 | 2951 | $0.00 | $0.00 | $0.00 | $0.00 | $0.00 | $0.00 |
Statement Details |
| 2024 | 3027 | ST - WASHINGTON STATE | $0.00 | $0.00 | $0.00 | $0.00 | $0.00 | $0.00 |
| 2024 | 3027 | WC - WHATCOM COUNTY | $0.00 | $0.00 | $0.00 | $0.00 | $0.00 | $0.00 |
| 2024 | 3027 | RD - COUNTY ROAD | $0.00 | $0.00 | $0.00 | $0.00 | $0.00 | $0.00 |
| 2024 | 3027 | FC - FLOOD CONTROL ZONE | $0.00 | $0.00 | $0.00 | $0.00 | $0.00 | $0.00 |
| 2024 | 3027 | CEM002 - CEMETERY #2 | $0.00 | $0.00 | $0.00 | $0.00 | $0.00 | $0.00 |
| 2024 | 3027 | CF - CONSERVATION FUTURES | $0.00 | $0.00 | $0.00 | $0.00 | $0.00 | $0.00 |
| 2024 | 3027 | FD011 - FIRE #11 | $0.00 | $0.00 | $0.00 | $0.00 | $0.00 | $0.00 |
| 2024 | 3027 | RL - RURAL LIBRARY | $0.00 | $0.00 | $0.00 | $0.00 | $0.00 | $0.00 |
| 2024 | 3027 | PT - PORT OF BELLINGHAM | $0.00 | $0.00 | $0.00 | $0.00 | $0.00 | $0.00 |
| 2024 | 3027 | SD502 - FERNDALE SCHOOL #502 | $0.00 | $0.00 | $0.00 | $0.00 | $0.00 | $0.00 |
| 2024 | 3027 | FD011EMS - FIRE #11 EMS | $0.00 | $0.00 | $0.00 | $0.00 | $0.00 | $0.00 |
| 2024 | 3027 | WCEMS - WHATCOM COUNTY EMS | $0.00 | $0.00 | $0.00 | $0.00 | $0.00 | $0.00 |
| 2024 | 3027 | TOTAL: | $0.00 | $0.00 | $0.00 | $0.00 | $0.00 | $0.00 |
|
| 2024 | 3027 | $0.00 | $0.00 | $0.00 | $0.00 | $0.00 | $0.00 |
Statement Details |
| 2023 | 3104 | ST - WASHINGTON STATE | $0.00 | $0.00 | $0.00 | $0.00 | $0.00 | $0.00 |
| 2023 | 3104 | WC - WHATCOM COUNTY | $0.00 | $0.00 | $0.00 | $0.00 | $0.00 | $0.00 |
| 2023 | 3104 | RD - COUNTY ROAD | $0.00 | $0.00 | $0.00 | $0.00 | $0.00 | $0.00 |
| 2023 | 3104 | FC - FLOOD CONTROL ZONE | $0.00 | $0.00 | $0.00 | $0.00 | $0.00 | $0.00 |
| 2023 | 3104 | CEM002 - CEMETERY #2 | $0.00 | $0.00 | $0.00 | $0.00 | $0.00 | $0.00 |
| 2023 | 3104 | CF - CONSERVATION FUTURES | $0.00 | $0.00 | $0.00 | $0.00 | $0.00 | $0.00 |
| 2023 | 3104 | FD011 - FIRE #11 | $0.00 | $0.00 | $0.00 | $0.00 | $0.00 | $0.00 |
| 2023 | 3104 | RL - RURAL LIBRARY | $0.00 | $0.00 | $0.00 | $0.00 | $0.00 | $0.00 |
| 2023 | 3104 | PT - PORT OF BELLINGHAM | $0.00 | $0.00 | $0.00 | $0.00 | $0.00 | $0.00 |
| 2023 | 3104 | SD502 - FERNDALE SCHOOL #502 | $0.00 | $0.00 | $0.00 | $0.00 | $0.00 | $0.00 |
| 2023 | 3104 | FD011EMS - FIRE #11 EMS | $0.00 | $0.00 | $0.00 | $0.00 | $0.00 | $0.00 |
| 2023 | 3104 | WCEMS - WHATCOM COUNTY EMS | $0.00 | $0.00 | $0.00 | $0.00 | $0.00 | $0.00 |
| 2023 | 3104 | TOTAL: | $0.00 | $0.00 | $0.00 | $0.00 | $0.00 | $0.00 |
|
| 2023 | 3104 | $0.00 | $0.00 | $0.00 | $0.00 | $0.00 | $0.00 |
Values
| (+) Improvement Homesite Value: | + | $0 | |
| (+) Improvement Non-Homesite Value: | + | $0 | |
| (+) Land Homesite Value: | + | $0 | |
| (+) Land Non-Homesite Value: | + | $292,500 | |
| (+) Curr Use (HS): | + | $0 | $0 |
| (+) Curr Use (NHS): | + | $0 | $0 |
| | | -------------------------- | |
| (=) Market Value: | = | $292,500 | |
| (–) Productivity Loss: | – | $0 | |
| | | -------------------------- | |
| (=) Subtotal: | = | $292,500 | |
| (+) Senior Appraised Value: | + | $0 | |
| (+) Non-Senior Appraised Value: | + | $292,500 | |
| | | -------------------------- | |
| (=) Total Appraised Value: | = | $292,500 | |
| (–) Senior Exemption Loss: | – | $0 | |
| (–) Exemption Loss: | – | $292,500 | |
| | | -------------------------- | |
| (=) Taxable Value: | = | $0 | |
Map List
Taxing Jurisdiction
| Owner: | LUMMI INDIAN BUSINESS COUNCIL | | |
| % Ownership: | 100.0000000000% | | |
| Total Value: | $292,500 | | |
| Tax Area: | 2035 - 502 R L F11 C2 EMS11 |
| CEM002 | CEMETERY #2 | 0.0115865779 | $292,500 | $0 | $0.00 | | |
| CFL | CONSERVATION FUTURES | 0.0230520536 | $292,500 | $0 | $0.00 | | |
| FCZDL | FLOOD CONTROL ZONE | 0.1059224782 | $292,500 | $0 | $0.00 | | |
| FD011EXP | FIRE #11 EXPENSE FUND | 0.9999073903 | $292,500 | $0 | $0.00 | | |
| PTBOND | PORT OF BELLINGHAM GO BOND | 0.0137802545 | $292,500 | $0 | $0.00 | | |
| PTGEN | PORT OF BELLINGHAM GENERAL FUND | 0.1139916840 | $292,500 | $0 | $0.00 | | |
| PTRDA | PORT OF BELLINGHAM RDA | 0.0001983539 | $292,500 | $0 | $0.00 | | |
| RDDIV | COUNTY ROAD DIVERSION | 0.0410839750 | $292,500 | $0 | $0.00 | | |
| RDGEN | COUNTY ROAD FUND | 0.8360740380 | $292,500 | $0 | $0.00 | | |
| RLIBGEN | RURAL LIBRARY | 0.2585219245 | $292,500 | $0 | $0.00 | | |
| SD502B | FERNDALE SCHOOL #502 BOND | 0.7758442491 | $292,500 | $0 | $0.00 | | |
| SD502CP | FERNDALE #502 CAPITAL PROJECTS | 0.0000000000 | $292,500 | $0 | $0.00 | | |
| SD502MO | FERNDALE SCHOOL #502 ENRICHMENT | 1.4382712805 | $292,500 | $0 | $0.00 | | |
| WA1 | STATE SCHOOL PART 1 | 1.5071435009 | $292,500 | $0 | $0.00 | | |
| WA2 | STATE SCHOOL PART 2 | 0.8108282856 | $292,500 | $0 | $0.00 | | |
| WCCE | COUNTY CURRENT EXPENSE | 0.5876517319 | $292,500 | $0 | $0.00 | | |
| WCCI | CHILDRENS INITIATIVE | 0.1681898915 | $292,500 | $0 | $0.00 | | |
| WCCT | COUNTY MENTAL HEALTH | 0.0124999999 | $292,500 | $0 | $0.00 | | |
| WCDD | COUNTY DEVELOPMENTAL DISABILITY | 0.0124999999 | $292,500 | $0 | $0.00 | | |
| WCER | COUNTY ELECTION RESERVE | 0.0058528688 | $292,500 | $0 | $0.00 | | |
| WCVR | COUNTY VETERANS RELIEF | 0.0112500000 | $292,500 | $0 | $0.00 | | |
| FD011EMS | EMERGENCY MEDICAL SVC FIRE #11 | 0.1882675294 | $292,500 | $0 | $0.00 | | |
| WCEMS | WHATCOM COUNTY EMS | 0.2208348495 | $292,500 | $0 | $0.00 | | |
| | Total Tax Rate: | 8.1432529169 | | | | | |
| | | | | Taxes w/Current Exemptions: | $0.00 | | |
| | | | | Taxes w/o Exemptions: | $2,381.90 | | |
Improvement / Building
Sketch
| No sketches available for this property. |
Property Image
Land
| 1 | 8429 | OTHR FISHERY | 0.0000 | 0.00 | 260.00 | 0.00 | 0.00 | $292,500 | $0 |
Roll Value History
| 2026 | N/A | N/A | N/A | N/A | N/A |
| 2025 | $0 | $1,055,295 | $0 | $1,055,295 | $0 |
| 2024 | $0 | $292,500 | $0 | $292,500 | $0 |
| 2023 | $0 | $292,500 | $0 | $292,500 | $0 |
| 2022 | $0 | $292,500 | $0 | $292,500 | $0 |
| 2021 | $0 | $292,500 | $0 | $292,500 | $0 |
| 2020 | $0 | $292,500 | $0 | $292,500 | $0 |
| 2019 | $0 | $292,500 | $0 | $292,500 | $0 |
| 2018 | $0 | $292,500 | $0 | $292,500 | $292,500 |
| 2017 | $0 | $292,500 | $0 | $292,500 | $292,500 |
| 2016 | $0 | $292,500 | $0 | $292,500 | $292,500 |
| 2015 | $0 | $292,500 | $0 | $292,500 | $292,500 |
| 2014 | $0 | $292,500 | $0 | $292,500 | $292,500 |
| 2013 | $0 | $292,500 | $0 | $292,500 | $292,500 |
| 2012 | $0 | $292,500 | $0 | $292,500 | $292,500 |
| 2011 | $0 | $292,500 | $0 | $292,500 | $292,500 |
| 2010 | $0 | $292,500 | $0 | $292,500 | $292,500 |
| 2009 | $0 | $292,500 | $0 | $292,500 | $292,500 |
| 2008 | $0 | $292,500 | $0 | $292,500 | $292,500 |
| 2007 | $0 | $273,000 | $0 | $273,000 | $273,000 |
Deed and Sales History
Payout Agreement
| No payout information available.. |